Aliante - Sistem de ranforsare cu lungime ajustabilă

Mixal
102,00 Lei
   Descoperiți eleganța și funcționalitatea supremă cu sistemul de uși glisante aplicate Aliante, marca Mixal! Indiferent dacă vă doriți un dressing modern sau un spațiu de depozitare eficient, acest sistem inovator vă va transforma locuința într-un spațiu cu adevărat remarcabil.
   Mixal se remarcă prin calitatea superioară a materialelor folosite în producție. Cu o atenție sporită la detalii și finisaje impecabile, sistemul de uși glisante Aliante este proiectat să reziste în timp și să ofere o funcționalitate excelentă. Fiecare componentă este concepută pentru a asigura o mișcare lină și silențioasă a ușilor, ceea ce transformă accesul la obiectele din dressing într-o experiență plăcută.
   Sistemul de ranforsare pentru ușile glisante este o soluție inovatoare și eficientă pentru a preveni curburile neplăcute ale ușilor în timpul utilizării acestora. Prin utilizarea sistemului de ranforsare, ușa glisantă beneficiază de o susținere suplimentară în punctele critice, precum marginile (superioară & inferioară) și mijlocul. Acest lucru previne curburile și garantează că ușa rămâne perfect aliniată și funcțională pe parcursul timpului.
 
  • Marca: Mixal;
  • Gama: Aliante;
  • Este recomandată montarea a 2 sisteme de ranforsare pentru uși cu lățimea mai mare de 600 mm;
  • Pentru 2 uși, cu o lățime mai mare de 600 mm, este nevoie de 4 sisteme de ranforsare;
  • Disponibil cu L 2.248 mm și L 2.259 mm;
  • Sistemele de amortizare la deschidere și la închidere facilitează deschiderea ușilor și previn zgomotul cauzat de închiderea lor (pentru achiziționare click denumire);
  • Sistemul Aliante este destinat pentru închiderea/deschiderea dulapurilor cu 2 sau 3 uși glisante;
  • Grosime ușă: 25 mm- 30mm;
  • Sistemul Aliante se poate monta pe uși construite din rame din aluminiu închise cu PAL , sticla sau MDF;
  • Nu necesită frezări speciale pentru uși;
  • Certificare CATAS;
  • Greutate: max. 85 kg/ușă;
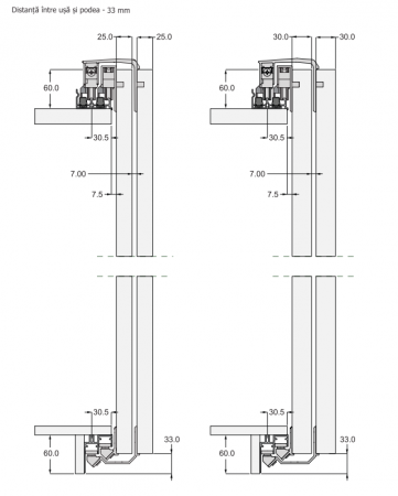
  • Distanță între ușă și podea: 33 mm.

   Nu lăsați nimic să intervină între dumneavoastră și visul de a avea un dressing perfect organizat și frumos. Calitatea, durabilitatea și designul ingenios sunt doar câteva dintre motivele pentru care sistemul Aliante este alegerea perfectă pentru proiectul dumneavoastră de amenajare a dressingului. 
Dimensiune:
In stoc

Durata de livrare: 1

Limita stoc
Adauga in cos
Cod Produs: Aliante.Ranfor-WT103.2248.101 Ai nevoie de ajutor? 0725940005 / 0722833967
Adauga la Favorite Cere informatii
  • Descriere
  • Review-uri (0)
   Descoperiți eleganța și funcționalitatea supremă cu sistemul de uși glisante aplicate Aliante, marca Mixal! Indiferent dacă vă doriți un dressing modern sau un spațiu de depozitare eficient, acest sistem inovator vă va transforma locuința într-un spațiu cu adevărat remarcabil.
   Mixal se remarcă prin calitatea superioară a materialelor folosite în producție. Cu o atenție sporită la detalii și finisaje impecabile, sistemul de uși glisante Aliante este proiectat să reziste în timp și să ofere o funcționalitate excelentă. Fiecare componentă este concepută pentru a asigura o mișcare lină și silențioasă a ușilor, ceea ce transformă accesul la obiectele din dressing într-o experiență plăcută.
   Sistemul de ranforsare pentru ușile glisante este o soluție inovatoare și eficientă pentru a preveni curburile neplăcute ale ușilor în timpul utilizării acestora. Este o opțiune ideală pentru a asigura durabilitatea și stabilitatea ușilor glisante, evitând deformările și menținând aspectul estetic al acestora.
   Prin utilizarea sistemului de ranforsare, ușa glisantă beneficiază de o susținere suplimentară în punctele critice, precum marginile (superioară & inferioară) și mijlocul. Acest lucru previne curburile și garantează că ușa rămâne perfect aliniată și funcțională pe parcursul timpului.

   Sistemul pentru Uși glisante aplicate Aliante Mixal reprezintă soluția perfectă pentru optimizarea spațiului în interiorul casei dumneavoastră. Acest sistem este special conceput pentru închiderea/deschiderea dulapurilor cu 2 sau 3 uși, oferindu-vă posibilitatea de a utiliza în mod eficient fiecare centimetru din încăpere. Cu o lungime de 2.248 mm și 2.259 mm, sistemul de ranforsare se potrivește perfect pentru a susține ușile glisante aplicate.

   Indiferent dacă ușile sunt construite din rame din aluminiu închise cu PAL, sticlă sau MDF, sistemul Aliante se poate monta cu ușurință. Nu sunt necesare frezări speciale pentru uși, ceea ce face instalarea simplă și rapidă, evitând modificările semnificative ale ușilor existente.

   Unul dintre avantajele majore ale acestui sistem este funcționalitatea sa excelentă. Ușile glisează în lateral, economisind spațiu și facilitând accesul la conținutul dulapurilor. Astfel, puteți beneficia de un design practic și modern, evitând deschiderea ușilor tradiționale care ocupă spațiu în încăpere.

   Un alt aspect important este sistemul de amortizare la închidere și deschidere. Acesta asigură o mișcare lină și silențioasă a ușilor, prevenind deteriorarea și oferind un plus de confort în utilizare. Bucurați-vă de experiența plăcută a deschiderii și închiderii ușilor glisante cu ajutorul sistemului Aliante.

   Certificarea CATAS reprezintă un indicator al calității și durabilității acestui sistem. Fiind testat și certificat conform standardelor industriale, puteți avea încredere că acesta va rezista în timp și va oferi performanțe excelente în utilizare.

   Sistemul Aliante este proiectat pentru a suporta o greutate maximă de 85 kg per ușă, asigurând o funcționare fiabilă și sigură. Distanța de 33 mm între ușă și podea permite o mișcare fluentă a ușilor glisante, eliminând riscul de blocare sau frecare.

   Cu privire la grosimea ușilor, sistemul Aliante este compatibil cu uși de 25 mm sau 30 mm. Pentru a asigura o rezistență sporită, vă recomandăm utilizarea sistemului de ranforsare, care se montează în cazul ușilor cu lățimea mai mare de 600 mm. Acesta contribuie la stabilitatea și durabilitatea sistemului, garantând o funcționare optimă pe termen lung.
   Nu lăsați nimic să intervină între dumneavoastră și visul de a avea un dressing perfect organizat și frumos. Calitatea, durabilitatea și designul ingenios sunt doar câteva dintre motivele pentru care sistemul Aliante este alegerea perfectă pentru proiectul dumneavoastră de amenajare a dressingului. 

Informatii conformitate produs
Daca doresti sa iti exprimi parerea despre acest produs poti adauga un review.

Review-ul a fost trimis cu succes.

Suport clienti Luni-Vineri 9-17 , Sambata 9-14 , timp mediu de raspuns la e-mail 2ore

0725940005 0722833967 contact@accesorii-de-mobilier.ro

Compara produse

Trebuie sa mai adaugi cel putin un produs pentru a compara produse.

A fost adaugat la favorite!

A fost sters din favorite!