Pachetul NU conține următoarele componente:
Durata de livrare: 4 - 5 zile lucrătoare
O soluție inteligentă și sofisticată pentru spațiile moderne, sistemul de pat rabatabil vertical cu birou pliabil redefinește conceptul de multifuncționalitate în mobilierul contemporan. Conceput cu rigoare tehnică și o atenție deosebită pentru detalii, acest sistem oferă atât confort în utilizare, cât și o estetică bine integrată în orice ambient.
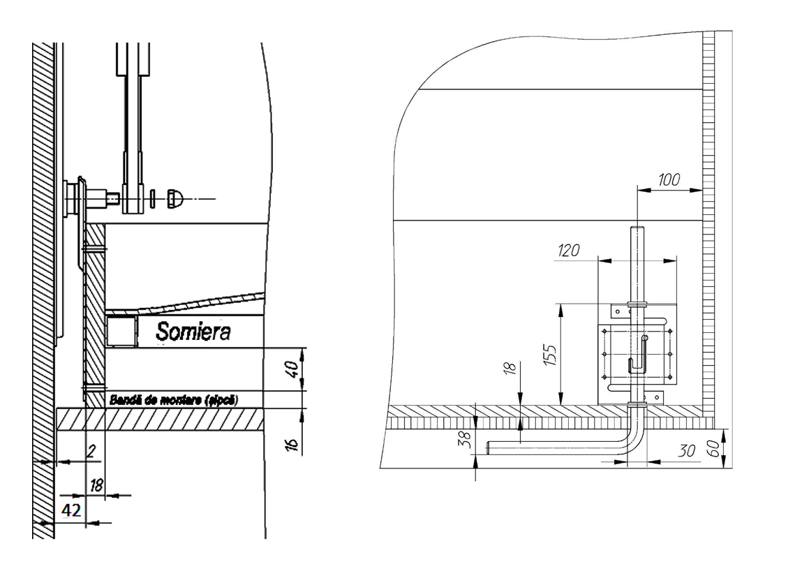
Somiera acestui sistem este realizată pe un cadru metalic de înaltă duritate, gândit special pentru a susține greutăți considerabile fără a suferi deformări în timp. Cele două rânduri de lamele flexibile contribuie esențial la ventilația saltelei, menținând astfel un climat interior optim și prelungind durata de viață a acesteia. În plus, lamelele au rolul de a absorbi șocurile și de a distribui uniform greutatea corpului, oferind un suport echilibrat și o experiență de somn superioară. Dimensiunea de 140x200 cm o face potrivită pentru utilizări individuale sau de cuplu, iar compatibilitatea cu saltelele din spumă de memorie cu înălțimi între 17 și 22 cm este ideală pentru confort și funcționalitate.
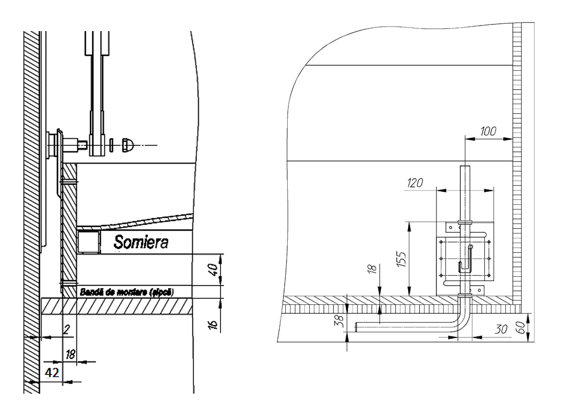
Pistoanele pneumatice, componente esențiale ale sistemului, garantează un mecanism de rabatare fiabil și silențios. Acestea permit deschiderea și închiderea patului fără efort, eliminând necesitatea aplicării unei forțe fizice considerabile. Este esențial ca banda de siguranță („stopper”) să fie îndepărtată doar după montajul final, pentru a evita compromiterea funcționării pistoanelor.
Structura sistemului rabatabil este vopsită în câmp electrostatic, asigurând o rezistență superioară la uzură și o estetică curată, fără imperfecțiuni. Materialul de construcție are o duritate ridicată, tocmai pentru a face față presiunii constante exercitate de mecanismul de rabatare. Piciorul mobil al patului, integrat în sistem, se activează automat, contribuind la siguranța și ușurința în utilizare. Carcasa sistemului trebuie executată din PAL sau MDF cu grosimea de 16–18 mm, iar pentru laterale este necesar PAL-ul dublat, pentru rigiditate structurală optimă. Este fundamental ca structura să fie montată perfect vertical, cu o toleranță maximă de doar 1 mm în orice direcție, pentru a garanta buna funcționare în timp.
Biroul pliabil al sistemului este susținut de o structură metalică robustă, realizată din profil 40x20 mm, tratată prin vopsire în câmp electrostatic, în finisaj elegant de culoare neagră. Această componentă oferă nu doar rezistență și stabilitate, ci și o bază estetică versatilă pentru integrarea în designul final al mobilierului.
Alegeți cu încredere această soluție inovatoare, pentru un spațiu bine organizat și un nivel superior de funcționalitate în locuința dumneavoastră.
Suport clienti Luni-Vineri 9-17 , Sambata 9-14 , timp mediu de raspuns la e-mail 2ore
0725940005 0722833967 contact@accesorii-de-mobilier.ro