Pachetul NU conține următoarele componente:
Sistemul de prindere în perete, care variază în funcție de tipul peretelui (ex: cărămidă, BCA, OSB, lemn etc.) și trebuie ales corespunzător structurii existente.
Mânerele pentru deschiderea patului, care se achiziționează separat, în funcție de preferințele estetice și funcționale.
Carcasa dulapului și panourile din PAL sau MDF, acestea trebuie realizate la comandă, în funcție de dimensiunile și designul dorit.
Remarcabil prin funcționalitate și robustețe, sistemul de pat rabatabil vertical marca Eksan reprezintă o soluție tehnică avansată, concepută special pentru integrarea eficientă în spații contemporane, fără compromis în privința confortului și fiabilității. Structura sa este gândită meticulos pentru a răspunde celor mai ridicate standarde din domeniul mobilierului funcțional, fiind ideală pentru amenajările moderne în care optimizarea spațiului se îmbină armonios cu un design coerent și durabil.
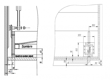
Somiera inclusă în acest sistem este susținută de un cadru metalic cu duritate ridicată, care conferă o rezistență remarcabilă la uzură și deformare în timp. Cele două rânduri de lamele flexibile, perfect calibrate, asigură un suport eficient pentru saltea, contribuind atât la ventilarea constantă a acesteia, cât și la absorbția uniformă a presiunii exercitate de greutatea corpului. Acest tip de somieră este recunoscut pentru proprietățile sale ergonomice, oferind o susținere corectă și o experiență de odihnă semnificativ îmbunătățită. Dimensiunile disponibile – 140x200 cm și 160x200 cm – sunt potrivite pentru dormitoare medii și mari, adaptabile diverselor configurații de mobilier.
Mecanismul de rabatare este acționat printr-un sistem pneumatic cu pistoane de înaltă performanță, care garantează o mișcare lentă, lină și silențioasă atât la ridicare, cât și la coborâre. Utilizarea acestui sistem nu necesită efort suplimentar, datorită acționării optimizate, iar durabilitatea componentelor pneumatice este dublată de ușurința în exploatare, cu condiția respectării stricte a instrucțiunilor de montaj – în special păstrarea benzii stopper până la instalarea completă. Orice abatere de la acest proces poate compromite ireversibil funcționarea pistonului, ceea ce subliniază precizia tehnologică cu care este construit întregul ansamblu.
Structura rabatabilă este vopsită în câmp electrostatic, ceea ce îi conferă o protecție superioară împotriva coroziunii și uzurii, menținându-și aspectul impecabil și proprietățile mecanice în timp. Metalul utilizat are o duritate sporită, selecționat special pentru a preveni orice deformare sub acțiunea forțelor generate de pistoane. Piciorul integrat este mobil și conectat mecanic la sistem, deschizându-se și închizându-se automat, într-o mișcare fluidă, fără intervenții manuale suplimentare.
Pentru realizarea fronturilor carcasei se recomandă utilizarea plăcilor de PAL / MDF cu grosimea de 16 - 18 mm, iar pentru realizarea lateralelor se va folosi PAL dublat. Corecta verticalitate a corpului este esențială – fiind admisă o deviere de maximum 1 mm – iar ancorarea sa de perete trebuie realizată exact pe axa patului, la înălțimea maxim posibilă. Aceste detalii constructive sunt vitale pentru ca mecanismul de rabatare să funcționeze în mod lin, în deplină siguranță și cu o capacitate de susținere ideală, cuprinsă între 30 și 80 kg.
Pentru performanță optimă, se recomandă utilizarea exclusivă a saltelelor din spumă de memorie, cu înălțime între 17 și 22 cm, evitându-se cele cu arcuri sau super ortopedice, deoarece greutatea acestora poate afecta dinamica mecanismului.
Alegerea sistemului de pat rabatabil marca Eksan este o decizie care reflectă exigența față de calitate, durabilitate și confort, fiind o investiție sigură în amenajarea unui dormitor funcțional și elegant. Vă încurajăm să optați pentru acest produs, care combină tehnologia avansată cu rafinamentul finisajelor și fiabilitatea unei mărci recunoscute în industrie.
Suport clienti Luni-Vineri 9-17 , Sambata 9-14 , timp mediu de raspuns la e-mail 2ore
0725940005 0722833967 contact@accesorii-de-mobilier.ro